1820 square foot 3 Bedroom, 2 Bathroom
This Townhome Style unit consists of the top 2 levels of a restored Craftsman Home located in the Riley Park Neighbourhood, just 1 block South of Mount Pleasant.
The area is very family friendly, with Simon Fraser Elementary School and Westside Montessori School within a 5 minute walk. Also nearby are Cambie Street, Main Street and VGH as well as the King Edward and the Broadway-City Hall Sky Train Stations.
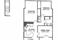
This first floor of the apartment is actually the full 2nd floor of the house, and consists of the first 2 bedrooms, one of the bathrooms, the kitchen, the living room, the dining room and a large open flex space.
The flex space (shown as Den on the floorplan) is an open space adjacent to the living room and the kitchen. The flex space provides plenty of use options as it is a good size, and could be put to use as an alternate living room or dining room location, a family room, a breakfast nook, a home office or just a second sitting area.
The living room and the dining room are separate rooms each with its own set of doors to the main living space as well as a set of French doors between the 2 rooms. These doors can all be left open for a great flow between rooms, but can also be closed to make each a private room. The dining room and the flex space could be alternated, allowing for a more private home office area in what would otherwise be the dining room.
The Kitchen includes the fridge, gas stove, oven, dishwasher and microwave. There is plenty of cupboard space and a window over the kitchen sink can be opened for added fresh air.
The first 2 bedrooms are located at the end of the hall, both of which are bright and spacious rooms. Each has a framed glass corner windows and both will easily fit a king sized bed along with additional bedroom furnishings.
There is a full bathroom as well as a full sized washer and dryer located just outside the 2 main floor bedrooms.
The second level (top level of the home) has an incredible loft style bedroom with sloped ceilings. This room has plenty of natural light, with 3 skylights and an opening window, and there is ample room for a king sized bed along with other bedroom furnishings.
There is a bathroom located outside of this room as well, which includes both a shower stall and a separate claw foot bathtub. Bath lovers will appreciate the opening skylight just above bathtub.
Heat & Electric, Gas and Water are included.
Sorry, this apartment is no pets and no smoking.
A dedicated parking space is not available. Street parking is available along the street out front and in the surrounding streets.
Contact Jacy or Alberto at Lanterna Property Management by calling 604-336-1818 or via email by selecting the Inquire Further button below. Please be sure to leave your name and a phone number that you can be reached at in your inquiry message.
Specifications & Amenities
This property is managed by
Jacy Dobrich
Jacy (Dustin) Dobrich is the Co-owner & Managing Broker of Lanterna Property Management with 20 years of direct...
Learn MoreTenant Testimonials
Matt & Grace
"Jacy served as our property manager for nearly two years at our West End apartment in Vancouver. He consistently demonstrated professionalism, friendliness, and a supportive attitude. He was approachable and easy to talk to, and very responsive, and promptly addressed any concerns we or the other tenants had. Jacy is a trustworthy property manager and always makes sure his tenants feel at home. Thank you, Jacy. We were grateful to have you as your property manager."
Jostenn H.
"Having moved a lot throughout my life, I can confidently say that Jacy has truly been the best landlord I've ever had. From helping me secure an exceptional living space to ensuring swift repairs, Jacy handles every aspect of property management with a profound respect for both tenants and owners. His commitment to excellence is evident in his outstanding professionalism, quick responsiveness, and unwavering friendliness throughout every interaction."
